用户名 密码 注册
加入桌面    设为首页    华北招商网导航   分享到:
0
首页 总站 北京站 天津站 河北站 山西站 内蒙古站
     
 厂房信息  仓库信息  物流信息  商业楼盘  写字楼  商铺广场  商务公寓  设备租赁  人才招聘  教育培训  机械设备  建筑设备  办公设备  舞台设备
 土地信息  农林信息  需求信息  商务酒店  独栋别墅  创意产业园  装饰装修  搬家  婚庆典礼  婚庆设备  文体设施  其他租凭
天津宝坻口东工业区厂房出租
  • 信息编号:92002
  • 发布时间: 2026-01-30 08:03:30
  • 浏览336次
标题:  天津宝坻口东工业区厂房出租
地址:  天津宝坻口东工业区
面积:  3万平方米
价格:  面议
区域:  宝坻
街道:  其他
类型:  房地产-厂库房
意向:  出租
联系人: 张经理
联系电话: 13212103381 13662150507 15332001065 
Email:1052082368@qq.com QQ:1052082368 微信:1052082368
详细信息
 示范工业园区之一,隶属于宝坻区政府,工业区总体规划10.77平方公里,其中起步区为3.4平方公里,小城镇建设面积3.5平方公里。工业区的发展定位为以汽车配件、塑料制品、军工制品和电力电气行业为主导的轻工业制造基地。 
    优势:(一)良好的区位优势,位于中国北方重要经济三角地 
带—京津唐三大城市的中心,园区紧邻宝坻城区,素有“金接点” 
之美誉,是企业家投资兴业的理想之地; 
   (二)交通便捷,项目所在地到天津、宝坻和唐山市区的车程 
都在50分钟之内,交通优势极为明显,是京津唐都市圈内最具市场 
辐射能力的黄金区域。京哈、津蓟、承塘和廊唐四条高速在宝坻区 
内呈井字形交汇,项目位于津蓟高速宝坻南出口处,3小时经济圈可覆盖15个大中城市。 
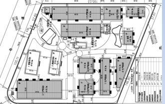
   (三)良好的生态优势,紧邻潮白新河,水面宽1千米,被誉为北国的江南。良好的生态、社会、经济环境,有利于各类企业的发展。本项目为花园式厂区,总建面积3万平米拥有单体面积在600至4000平米的厂房及办公楼,配有宿舍楼、游泳池、篮球场等员工配套设施,可整租也可分租。 
    厂房主体结构位钢结构,商业及办公楼、宿舍楼位砖混结构。
 友情链接
客服电话: 13212103381 13662150507 15332001065   工作QQ:1052082368 微信:1052082368
华北招商网 huabeizs.com.cn - 版权所有 长城互联(天津)科技发展有限公司
津ICP备08002507号-5 津公网安备12010302002594